építőművészet

Hír

2025-12-17 15:19:43

Fertőhomok

XX. század eleji épület második változat

XX. század eleji épület felújításáról készített második változat

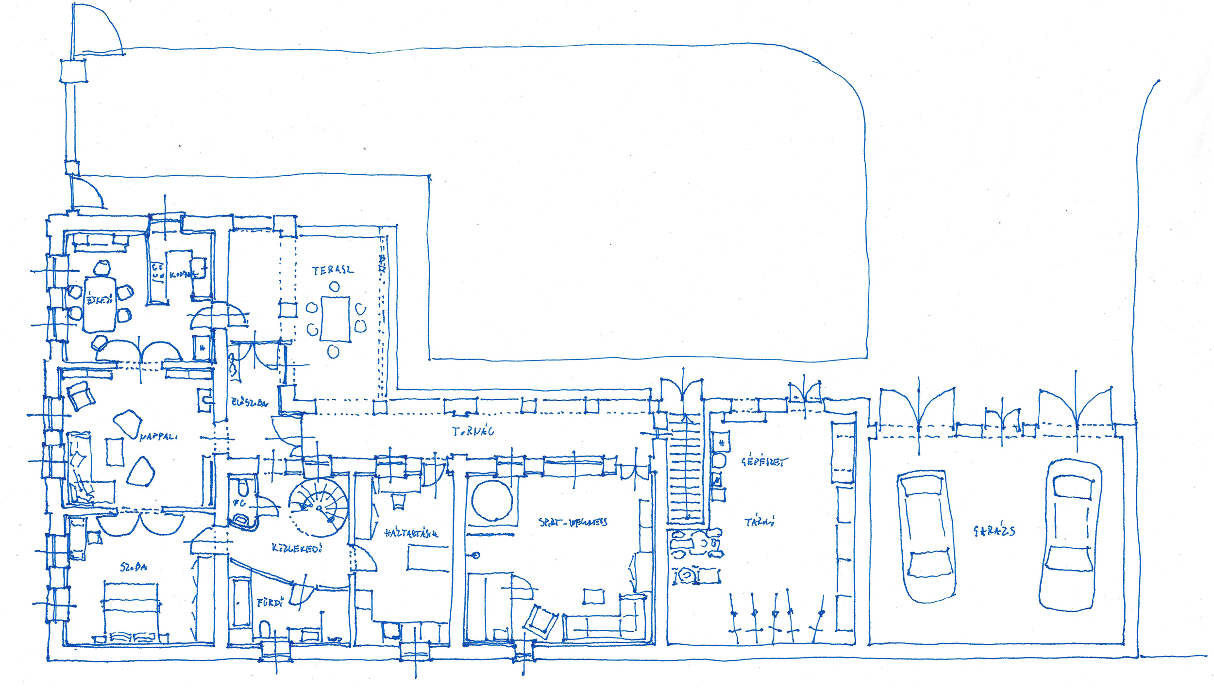
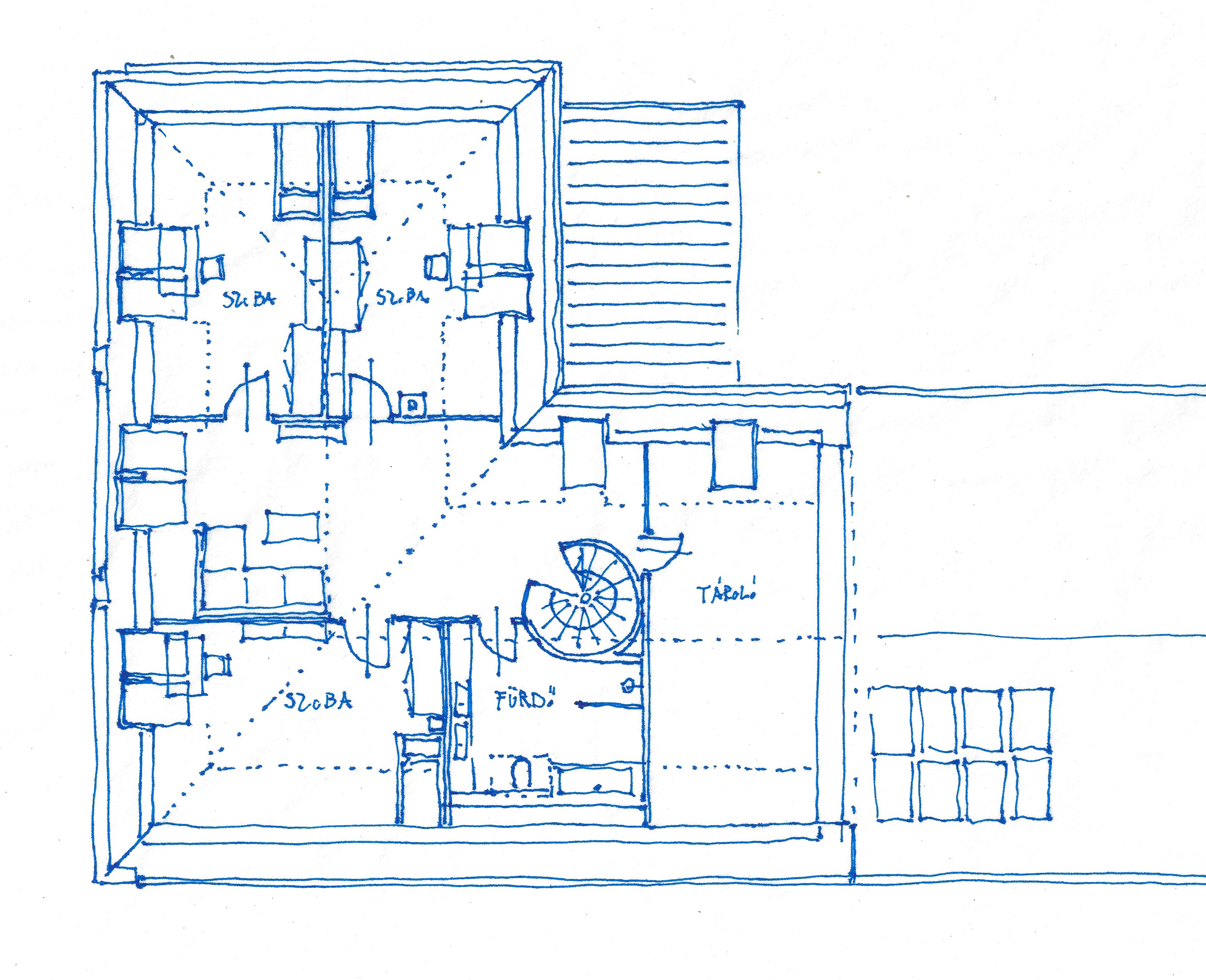
Ezt a pályázati időszakot azzal kezdtem, hogy az ösztöndíjas találkozón megbeszéltek szerint készítettem új változatot a legutóbbi, fertőhomoki polgári ház átépítésére. Az új változat meg tudja tartani az utcai térsor egybenyíló rendszerét, és sokkal kevesebb zegzugos közlekedőt tartalmaz. Terei tágasabbak, mégis minden szükséges funkció megtalálható benne. A pozitívumok mellett sajnos hátrányai is vannak az új kialakításnak, be kellett építeni a ház tetőterét, így a gyerekszobákat lépcsőn lehet megközelíteni, és az utcai homlokzaton is meg kell hogy jelenjenek tetősík ablakok. Összességében mindenképpen pozitív irányba változott a terv. Az alábbi rajzokon, videón tekinthető meg az új változat.


Kapcsolódó fájlok