építőművészet

Hír

2025-12-17 19:31:45

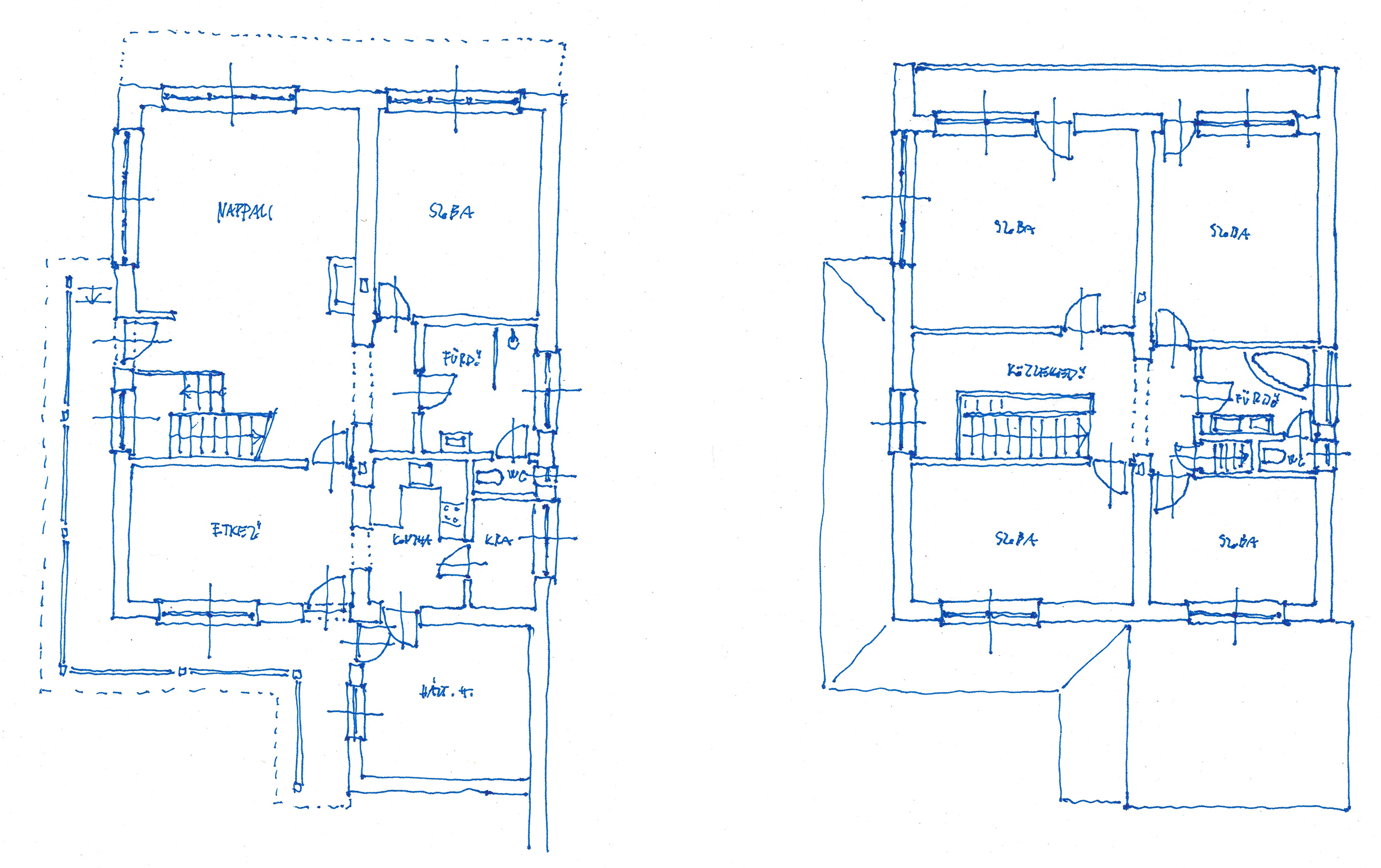
XX. század végi családi ház kiinduló állapota

XX. század végi családi ház kiinduló állapota

A soron következő ház kiindulási állapotát szeretném bemutatni, amit az ösztöndíj keretében tervezek át. Ez egy 1980 körül épült családi ház, ami az előzőhöz hasonlóan Fertőhomok világörökségi területén található. Akkortájt Magyarországon sokan építettek a szükségleteikhez viszonyítottan túldimenzionált lakóházakat, aminek aztán több lakószobáját nem is használták. Ez az attitűd tetten érhető jelen épületünk esetén is. A célszerűtlenségen túl ennek a viselkedésnek következménye, hogy az épület túfeszíti a hagyományos utcaképet, tömege idegen zárvány a faluképben. Jelen kísérletemben az így felmerülő a problémákra igyekszem válaszokat adni, bár érzésem szerint csak mérsékelni fogom tudni őket, megoldani a -csaknem- teljes bontás nélkül.



Kapcsolódó fájlok